Les avantages de la Ville à la Campagne
Écrivez votre légende iciBouton
Bora Bora
Avec ses 4 chambres, ses 2 salles de bains et sa vaste pièce à vivre de 48 m², la maison Bora Bora offre un cadre de vie spacieux, lumineux et confortable.
Les avantages de la Ville à la Campagne
Écrivez votre légende iciBouton
Bora Bora
Avec ses 4 chambres, ses 2 salles de bains et sa vaste pièce à vivre de 48 m², la maison Bora Bora offre un cadre de vie spacieux, lumineux
et confortable.
Les avantages de la Ville à la Campagne
Écrivez votre légende iciBouton
Bora Bora
Avec ses 4 chambres,
ses 2 salles de bains
et sa vaste pièce à vivre de 48 m², la maison
Bora Bora offre un
cadre de vie spacieux, lumineux et confortable
4 chambres
2 salles de bain
Garage
< 150 m²
4 chambres
2 Salles de bain
Garage
< 150 m²
4 chambres
2 Salles de bain
Garage
< 150 m²
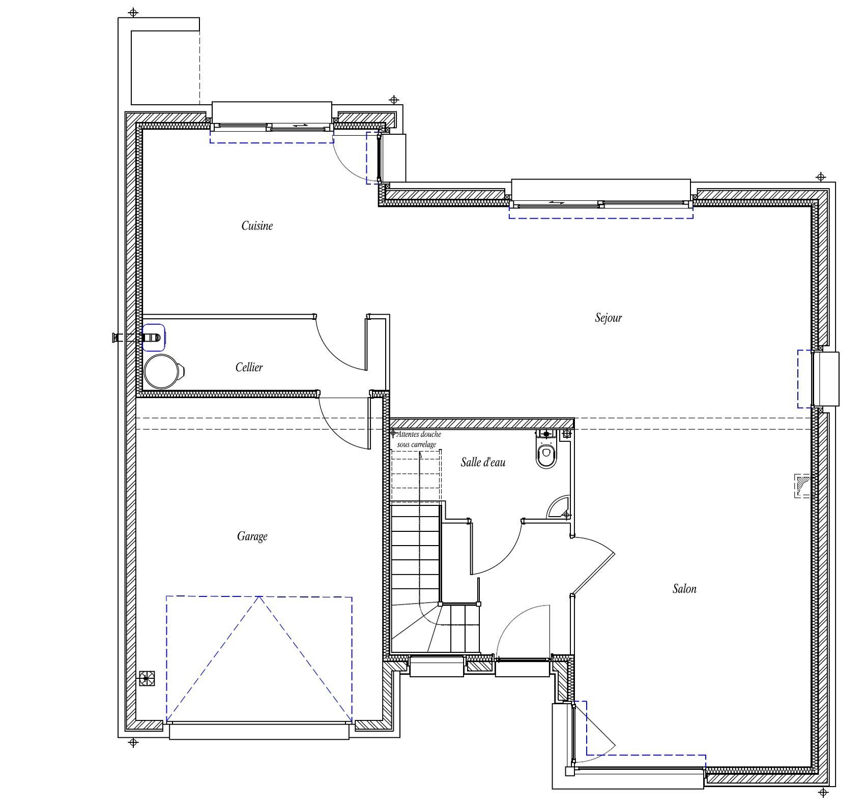
Maison Bora Bora
Spacieuse et baignée de lumière, la Maison Bora Bora vous accueille dans un cadre de vie généreux de 142 m², pensé pour conjuguer bien-être, fonctionnalité et élégance.
✔️ 4 chambres pour toute la famille ou pour vos projets personnels
✔️ 2 salles de bain, dont une suite parentale, pour plus de confort au quotidien
✔️ Un garage pratique
✔️ Une personnalisation sur-mesure pour créer un intérieur qui vous ressemble
La Maison Bora Bora, c’est l’alliance parfaite entre volumes généreux et design contemporain. Une maison idéale pour ceux qui veulent voir les choses en grand !
| Surface | 142,37 m² |
|---|---|
| Chambres | 4 chambres |
| Salle de bain | 2 salles de bain |
| Surface séjour | 48 |
| Garage | Oui |
| Carport | Non |
Maison Bora Bora
Spacieuse et baignée de lumière, la Maison Bora Bora vous accueille dans un cadre de vie généreux de 142 m², pensé pour conjuguer bien-être, fonctionnalité et élégance.
✔️ 4 chambres pour toute la famille ou pour vos projets personnels
✔️ 2 salles de bain, dont une suite parentale, pour plus de confort au quotidien
✔️ Un garage pratique
✔️ Une personnalisation sur-mesure pour créer un intérieur qui vous ressemble
La Maison Bora Bora, c’est l’alliance parfaite entre volumes généreux et design contemporain. Une maison idéale pour ceux qui veulent voir les choses en grand !
| Surface | 142,37 m² |
|---|---|
| Chambres | 4 chambres |
| Salle de bain | 2 salles de bain |
| Surface séjour | 48 |
| Garage | Oui |
| Carport | Non |
Maison Bora Bora
Spacieuse et baignée de lumière, la Maison Bora Bora vous accueille dans un cadre de vie généreux de 142 m², pensé pour conjuguer bien-être, fonctionnalité et élégance.
✔️ 4 chambres pour toute la famille ou pour vos projets personnels
✔️ 2 salles de bain, dont une suite parentale, pour plus de confort au quotidien
✔️ Un garage pratique
✔️ Une personnalisation sur-mesure pour créer un intérieur qui vous ressemble
La Maison Bora Bora, c’est l’alliance parfaite entre volumes généreux et design contemporain. Une maison idéale pour ceux qui veulent voir les choses en grand !
| Surface | 142,37 m² |
|---|---|
| Chambres | 4 chambres |
| Salle de bain | 2 salles de bain |
| Surface séjour | 48 |
| Garage | Oui |
| Carport | Non |






