Les avantages de la Ville à la Campagne
Écrivez votre légende iciBouton
Club
Élégance et volumes généreux sur 166 m²
La Maison Club vous offre un art de vivre spacieux et raffiné.
Les avantages de la Ville à la Campagne
Écrivez votre légende iciBouton
Club
Élégance et volumes généreux sur 166 m²
La Maison Club vous offre un art de vivre
spacieux et raffiné
Les avantages de la Ville à la Campagne
Écrivez votre légende iciBouton
Club
Élégance et volumes généreux sur 166 m²
La Maison Club vous
offre un art de vivre spacieux et raffiné
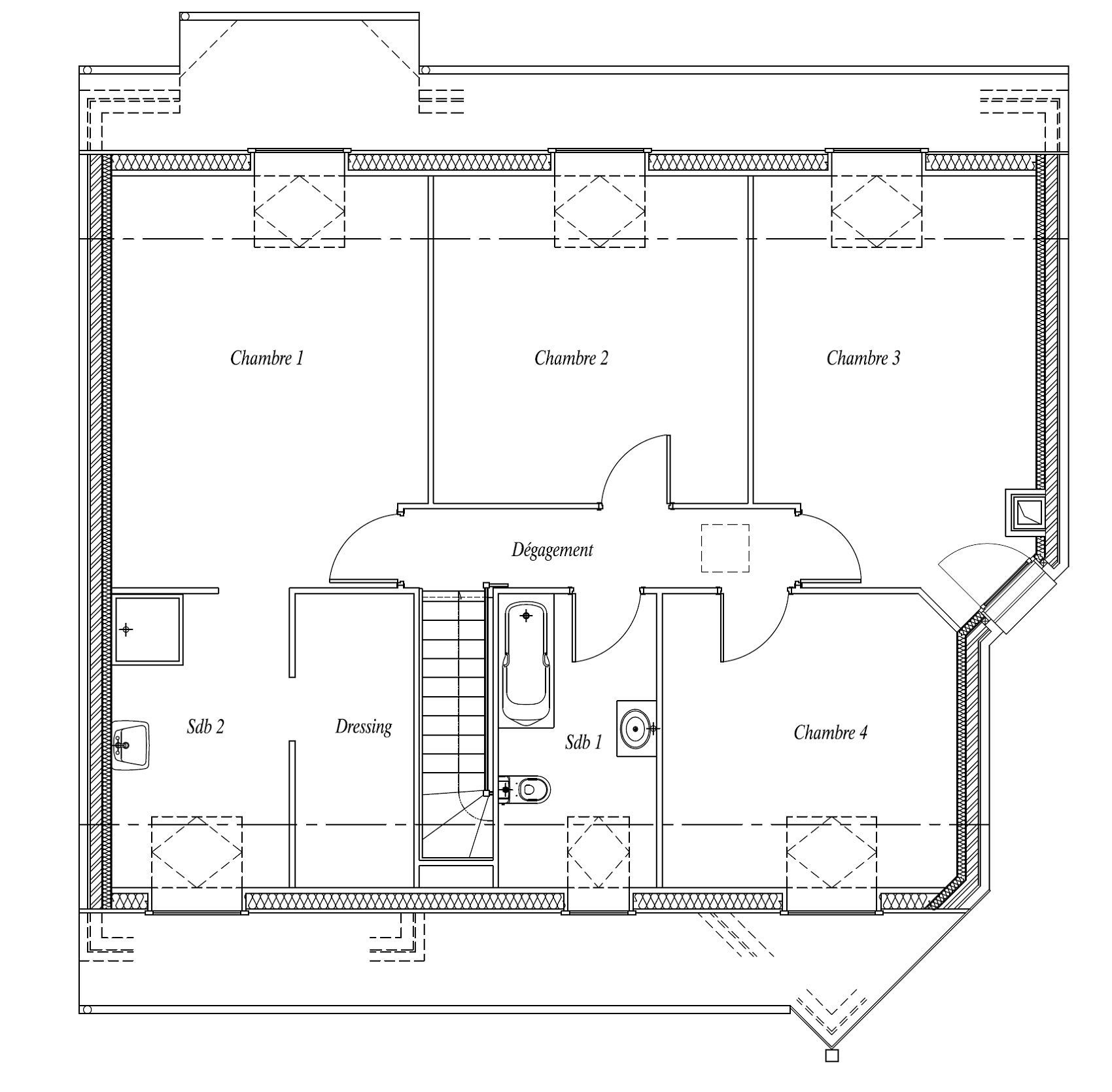
4 chambres
2 salles de bain
Garage
> 150 m²
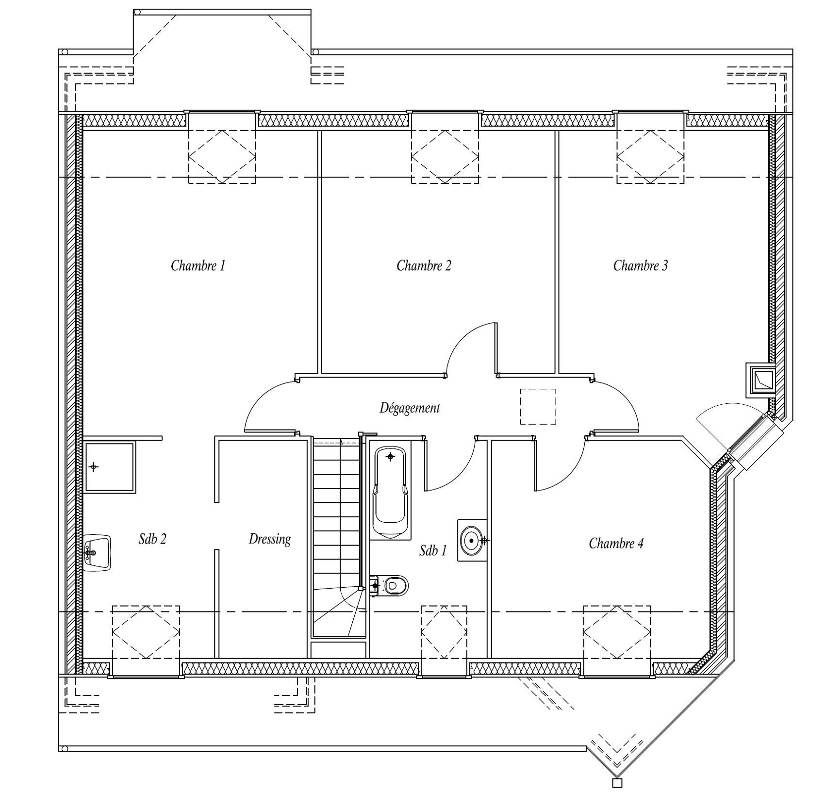
4 chambres
2 Salles de bain
Garage
> 150 m²
4 chambres
2 Salles de bain
Garage
> 150 m²
Maison Club
La Maison Club vous offre un art de vivre spacieux et raffiné, parfaitement adapté aux besoins d’une famille moderne.
✔️ 166 m² habitables
✔️ 4 chambres, dont une belle suite parentale avec dressing
✔️ 2 salles de bain
✔️ Un bureau
✔️ Un spacieux séjour lumineux de 44 m²
✔️ Garage intégré
✔️ Des volumes généreux et une circulation fluide
✔️ Personnalisation possible pour s’adapter à votre mode de vie
Un modèle idéal pour allier confort, espace et fonctionnalité, dans un cadre de vie contemporain.
| Surface | 166,51 |
|---|---|
| Chambres | 4 chambres |
| Salle de bain | 2 salles de bain |
| Surface séjour | 44,12 |
| Garage | Oui |
| Carport | Non |
Maison Club
La Maison Club vous offre un art de vivre spacieux et raffiné, parfaitement adapté aux besoins d’une famille moderne.
✔️ 166 m² habitables
✔️ 4 chambres, dont une belle suite parentale avec dressing
✔️ 2 salles de bain
✔️ Un bureau
✔️ Un spacieux séjour lumineux de 44 m²
✔️ Garage intégré
✔️ Des volumes généreux et une circulation fluide
✔️ Personnalisation possible pour s’adapter à votre mode de vie
Un modèle idéal pour allier confort, espace et fonctionnalité, dans un cadre de vie contemporain.
| Surface | 166,51 |
|---|---|
| Chambres | 4 chambres |
| Salle de bain | 2 salles de bain |
| Surface séjour | 44,12 |
| Garage | Oui |
| Carport | Non |
Maison Club
La Maison Club vous offre un art de vivre spacieux et raffiné, parfaitement adapté aux besoins d’une famille moderne.
✔️ 166 m² habitables
✔️ 4 chambres, dont une belle suite parentale avec dressing
✔️ 2 salles de bain
✔️ Un bureau
✔️ Un spacieux séjour lumineux de 44 m²
✔️ Garage intégré
✔️ Des volumes généreux et une circulation fluide
✔️ Personnalisation possible pour s’adapter à votre mode de vie
Un modèle idéal pour allier confort, espace et fonctionnalité, dans un cadre de vie contemporain.
| Surface | 166,51 |
|---|---|
| Chambres | 4 chambres |
| Salle de bain | 2 salles de bain |
| Surface séjour | 44,12 |
| Garage | Oui |
| Carport | Non |






