Les avantages de la Ville à la Campagne
Écrivez votre légende iciBouton
Fairway
Spacieuse et lumineuse, la maison Fairway
séduit par ses 4 chambres bien
agencées et ses
espaces de vie généreux
Les avantages de la Ville à la Campagne
Écrivez votre légende iciBouton
Fairway
Spacieuse et lumineuse, la maison Fairway séduit par ses 4 chambres bien agencées et ses espaces de vie généreux
Les avantages de la Ville à la Campagne
Écrivez votre légende iciBouton
Fairway
Spacieuse et lumineuse, la maison Fairway séduit par ses 4 chambres bien agencées et ses espaces de vie généreux
4 chambres
1 salle de bain
Garage
< 150 m²
4 chambres
1 Salle de bain
Garage
< 150 m²
4 chambres
1 Salle de bain
Garage
< 150 m²
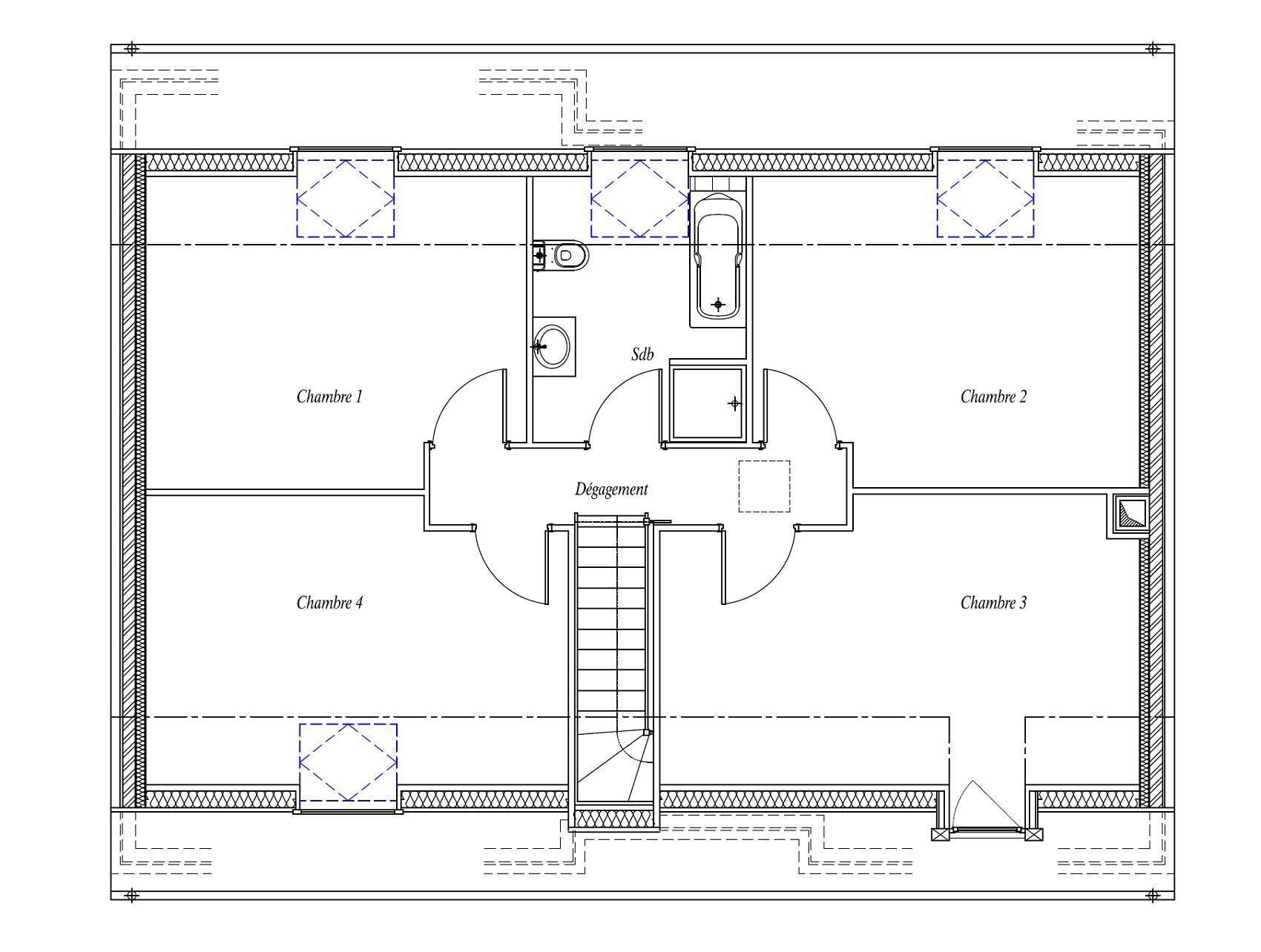
Maison Fairway
Avec ses 129 m² intelligemment agencés, la Maison Fairway séduit par son allure contemporaine et ses volumes bien pensés pour répondre aux besoins de toute la famille.
✔️ 4 chambres lumineuses
✔️ 1 salle de bain spacieuse
✔️ Un garage pratique et fonctionnel
✔️ Une personnalisation intérieure pour un intérieur qui vous ressemble
Pensée pour offrir confort, modernité et modularité, la Maison Fairway s’adapte à tous les styles de vie.
Un cadre idéal pour poser vos valises… et écrire votre nouvelle histoire.
| Surface | 129,29 m² |
|---|---|
| Chambres | 4 chambres |
| Salle de bain | 1 salle de bain |
| Surface séjour | 40,87 |
| Garage | Oui |
| Carport | Non |
Maison Fairway
Avec ses 129 m² intelligemment agencés, la Maison Fairway séduit par son allure contemporaine et ses volumes bien pensés pour répondre aux besoins de toute la famille.
✔️ 4 chambres lumineuses
✔️ 1 salle de bain spacieuse
✔️ Un garage pratique et fonctionnel
✔️ Une personnalisation intérieure pour un intérieur qui vous ressemble
Pensée pour offrir confort, modernité et modularité, la Maison Fairway s’adapte à tous les styles de vie.
Un cadre idéal pour poser vos valises… et écrire votre nouvelle histoire.
| Surface | 129,29 m² |
|---|---|
| Chambres | 4 chambres |
| Salle de bain | 1 salle de bain |
| Surface séjour | 40,87 |
| Garage | Oui |
| Carport | Non |
Maison Fairway
Avec ses 129 m² intelligemment agencés, la Maison Fairway séduit par son allure contemporaine et ses volumes bien pensés pour répondre aux besoins de toute la famille.
✔️ 4 chambres lumineuses
✔️ 1 salle de bain spacieuse
✔️ Un garage pratique et fonctionnel
✔️ Une personnalisation intérieure pour un intérieur qui vous ressemble
Pensée pour offrir confort, modernité et modularité, la Maison Fairway s’adapte à tous les styles de vie.
Un cadre idéal pour poser vos valises… et écrire votre nouvelle histoire.
| Surface | 129,29 m² |
|---|---|
| Chambres | 4 chambres |
| Salle de bain | 1 salle de bain |
| Surface séjour | 40,87 |
| Garage | Oui |
| Carport | Non |






