Les avantages de la Ville à la Campagne
Écrivez votre légende iciBouton
Trend
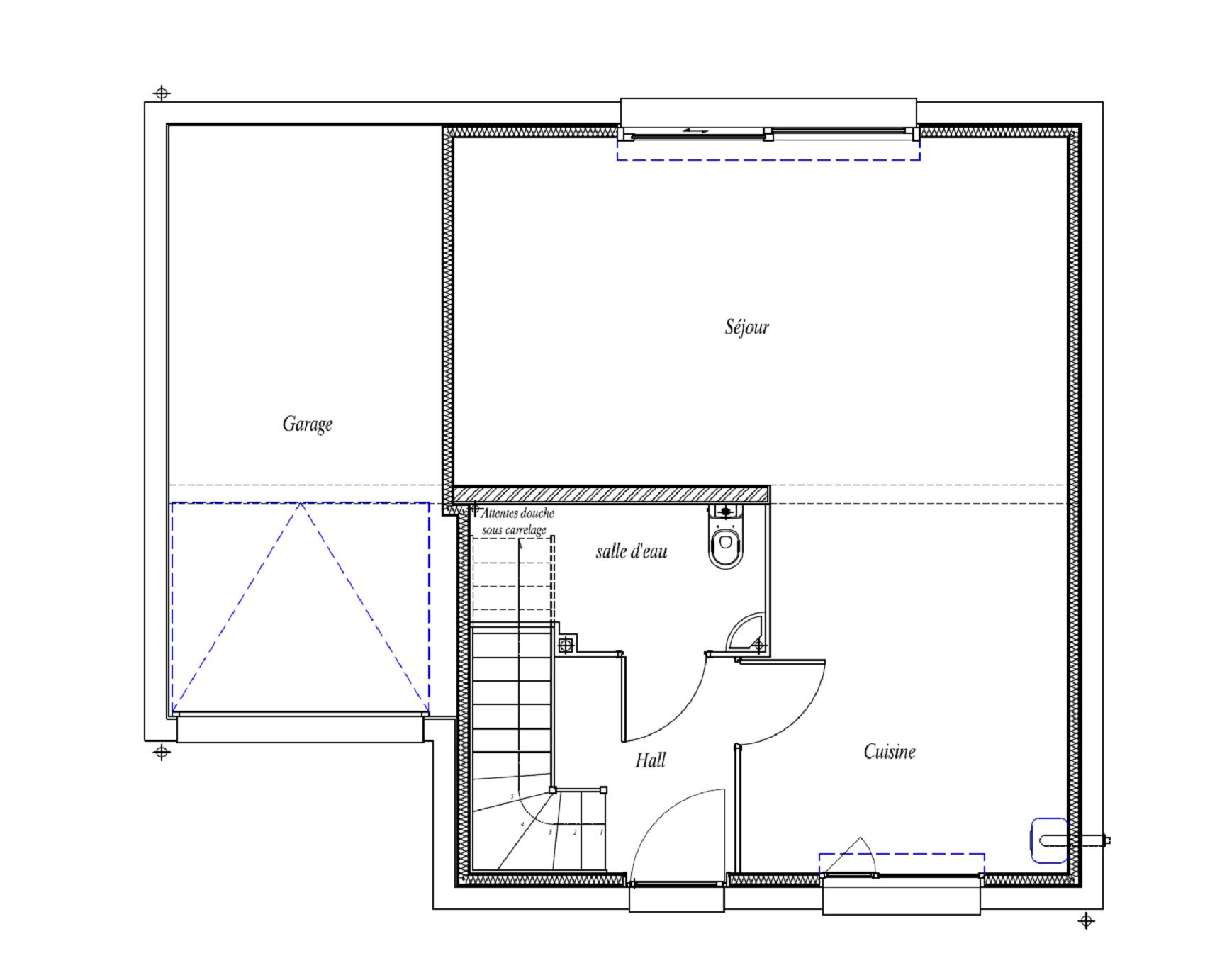
Avec une surface habitable de 80,32 m², la maison Trend, compacte et fonctionnelle, a été pensée pour optimiser chaque mètre carré.
Les avantages de la Ville à la Campagne
Écrivez votre légende iciBouton
Trend
Avec une surface habitable de 80,32 m²,
la maison Trend, compacte et fonctionnelle,
a été pensée pour optimiser chaque mètre carré.
Les avantages de la Ville à la Campagne
Écrivez votre légende iciBouton
Trend
Avec une surface habitable de 80,32 m²,
la maison Trend, compacte et fonctionnelle, a été pensée pour optimiser chaque mètre carré.
3 chambres
1 salle de bain
Garage
< 100 m²
3 chambres
1 Salle de bain
Garage
< 100 m²
3 chambres
1 Salle de bain
Garage
< 100 m²
Maison Trend
Avec son design épuré et son agencement optimisé, la Maison Trend coche toutes les cases pour un quotidien pratique et agréable.
Ce modèle compact mais complet propose :
✔️ 3 chambres lumineuses pour toute la famille
✔️ 1 salle de bain fonctionnelle
✔️ Un garage intégré pour plus de confort
✔️ Une personnalisation intérieure pour une maison à votre image
Idéale comme première acquisition ou pour un projet familial maîtrisé, la Maison Trend allie simplicité, modernité et efficacité.
Le bon compromis entre esthétique, fonctionnalité et budget !
| Surface | 80,32 m² |
|---|---|
| Chambres | 3 chambres |
| Salle de bain | 1 salle de bain |
| Surface séjour | 35 |
| Garage | Oui |
| Carport | Non |
Maison Trend
Avec son design épuré et son agencement optimisé, la Maison Trend coche toutes les cases pour un quotidien pratique et agréable.
Ce modèle compact mais complet propose :
✔️ 3 chambres lumineuses pour toute la famille
✔️ 1 salle de bain fonctionnelle
✔️ Un garage intégré pour plus de confort
✔️ Une personnalisation intérieure pour une maison à votre image
Idéale comme première acquisition ou pour un projet familial maîtrisé, la Maison Trend allie simplicité, modernité et efficacité.
Le bon compromis entre esthétique, fonctionnalité et budget !
| Surface | 80,32 m² |
|---|---|
| Chambres | 3 chambres |
| Salle de bain | 1 salle de bain |
| Surface séjour | 35 |
| Garage | Oui |
| Carport | Non |
Maison Trend
Avec son design épuré et son agencement optimisé, la Maison Trend coche toutes les cases pour un quotidien pratique et agréable.
Ce modèle compact mais complet propose :
✔️ 3 chambres lumineuses pour toute la famille
✔️ 1 salle de bain fonctionnelle
✔️ Un garage intégré pour plus de confort
✔️ Une personnalisation intérieure pour une maison à votre image
Idéale comme première acquisition ou pour un projet familial maîtrisé, la Maison Trend allie simplicité, modernité et efficacité.
Le bon compromis entre esthétique, fonctionnalité et budget !
| Surface | 80,32 m² |
|---|---|
| Chambres | 3 chambres |
| Salle de bain | 1 salle de bain |
| Surface séjour | 35 |
| Garage | Oui |
| Carport | Non |





