Les avantages de la Ville à la Campagne
Écrivez votre légende iciBouton
Barbade
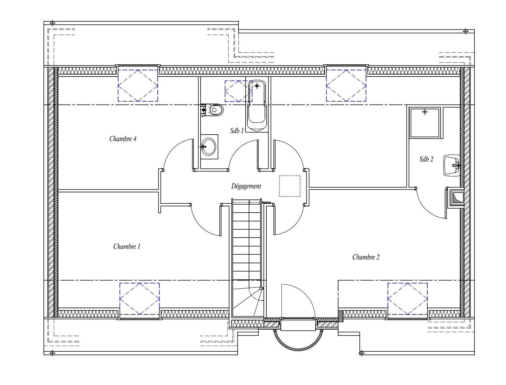
Avec ses 4 chambres confortables et ses 2 salles de bains, la maison Barbade a été pensée pour répondre aux besoins des familles modernes
Les avantages de la Ville à la Campagne
Écrivez votre légende iciBouton
Barbade
Avec ses 4 chambres confortables et ses 2 salles de bains, la maison Barbade a été pensée pour répondre aux besoins des familles modernes
Les avantages de la Ville à la Campagne
Écrivez votre légende iciBouton
Barbade
Avec ses 4 chambres confortables
et ses 2 salles de bains,
la maison Barbade
a été pensée pour répondre aux besoins
des familles modernes
4 chambres
2 salles de bain
Garage
< 150 m²
4 chambres
2 Salles de bain
Garage
< 150 m²
4 chambres
2 Salles de bain
Garage
< 150 m²
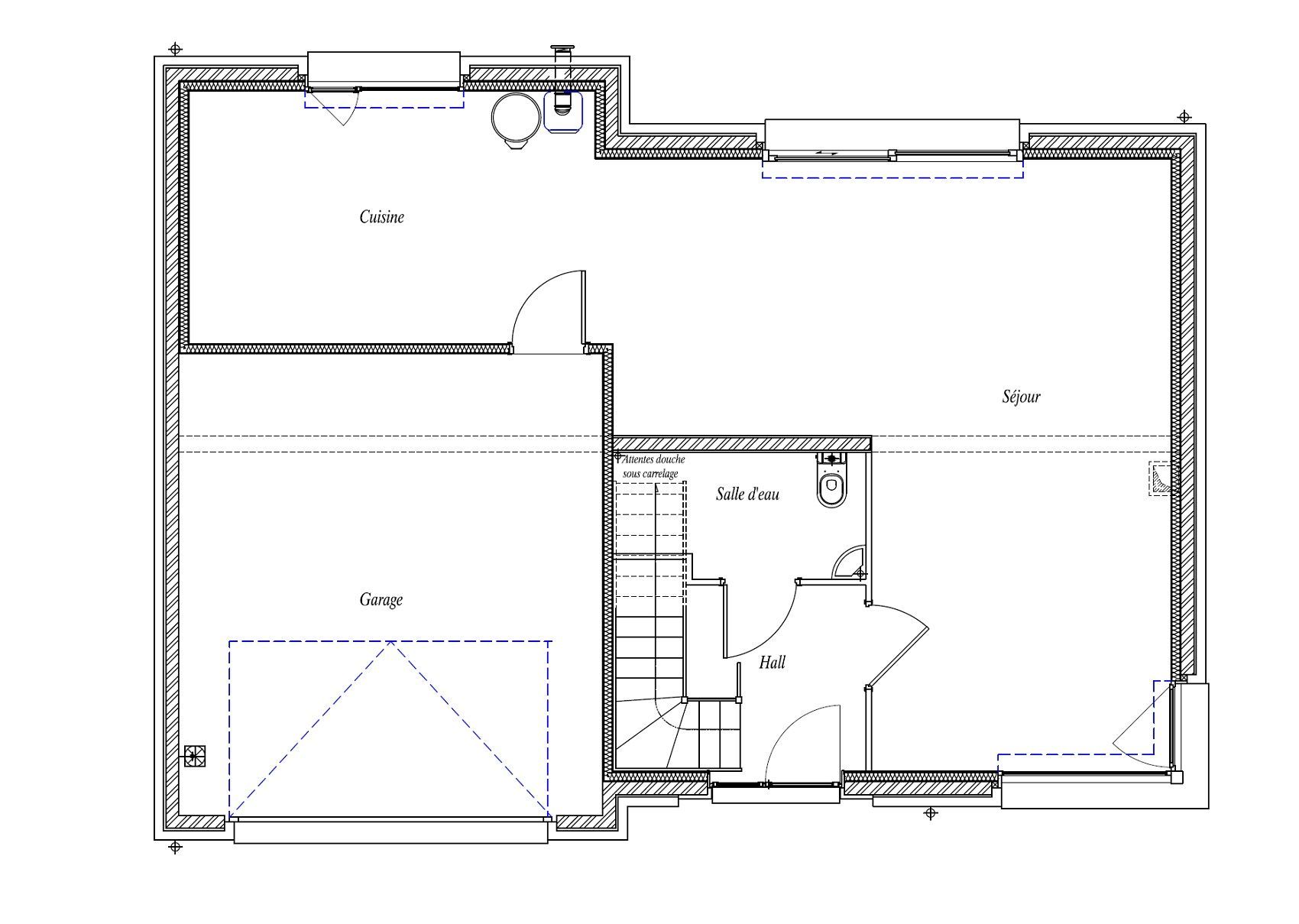
Maison Barbade
La Maison Barbade déploie ses 115,50 m² dans un style moderne et chaleureux, idéal pour accueillir votre famille dans un cadre pratique et harmonieux.
✔️ 4 chambres pour le confort de tous
✔️ 2 salles de bain pour plus de fluidité au quotidien
✔️ Un garage intégré pour votre sérénité
✔️ Personnalisation intérieure pour une maison qui vous ressemble
Conçue pour allier fonctionnalité et esthétisme, la Maison Barbade s'adapte à vos envies et à votre mode de vie.
| Surface | 115,50 |
|---|---|
| Chambres | 4 chambres |
| Salle de bain | 2 salles de bain |
| Surface séjour | 35,48 |
| Garage | Oui |
| Carport | Non |
Maison Barbade
La Maison Barbade déploie ses 115,50 m² dans un style moderne et chaleureux, idéal pour accueillir votre famille dans un cadre pratique et harmonieux.
✔️ 4 chambres pour le confort de tous
✔️ 2 salles de bain pour plus de fluidité au quotidien
✔️ Un garage intégré pour votre sérénité
✔️ Personnalisation intérieure pour une maison qui vous ressemble
Conçue pour allier fonctionnalité et esthétisme, la Maison Barbade s'adapte à vos envies et à votre mode de vie.
| Surface | 115,50 |
|---|---|
| Chambres | 4 chambres |
| Salle de bain | 2 salles de bain |
| Surface séjour | 35,48 |
| Garage | Oui |
| Carport | Non |
Maison Barbade
La Maison Barbade déploie ses 115,50 m² dans un style moderne et chaleureux, idéal pour accueillir votre famille dans un cadre pratique et harmonieux.
✔️ 4 chambres pour le confort de tous
✔️ 2 salles de bain pour plus de fluidité au quotidien
✔️ Un garage intégré pour votre sérénité
✔️ Personnalisation intérieure pour une maison qui vous ressemble
Conçue pour allier fonctionnalité et esthétisme, la Maison Barbade s'adapte à vos envies et à votre mode de vie.
| Surface | 115,50 |
|---|---|
| Chambres | 4 chambres |
| Salle de bain | 2 salles de bain |
| Surface séjour | 35,48 |
| Garage | Oui |
| Carport | Non |




