Les avantages de la Ville à la Campagne
Écrivez votre légende iciBouton
Grenadines
La maison Grenadines séduit par son agencement sur deux niveaux, offrant à la fois espace et intimité.
Les avantages de la Ville à la Campagne
Écrivez votre légende iciBouton
Grenadines
La maison Grenadines séduit par son agencement sur deux niveaux, offrant à la fois espace
et intimité.
Les avantages de la Ville à la Campagne
Écrivez votre légende iciBouton
Grenadines
La maison Grenadines séduit par son agencement sur deux niveaux, offrant à
la fois espace et
intimité
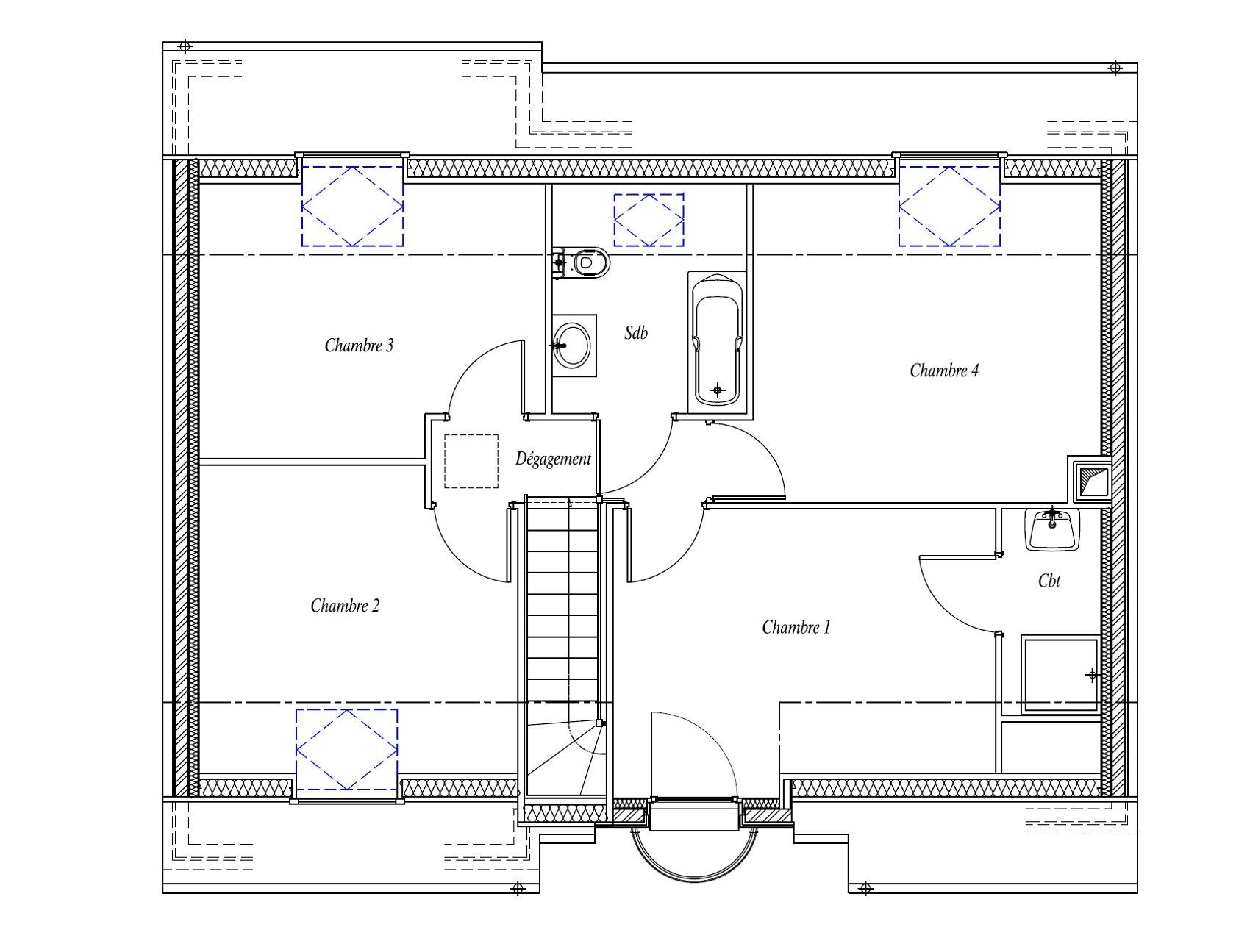
4 chambres
2 salles de bain
Garage
< 150 m²
4 chambres
2 Salles de bain
Garage
< 150 m²
4 chambres
2 Salles de bain
Garage
< 150 m²
Maison Grenadines
✔️ 4 chambres
✔️ 1 salle de bain + 1 salle d'eau
✔️ Garage
✔️ Personnalisation
Un style affirmé, une conception soignée : Grenadines incarne la maison familiale moderne par excellence.
| Surface | 104,18 |
|---|---|
| Chambres | 4 chambres |
| Salle de bain | 1 salle de bain + 1 salle d'eau |
| Surface séjour | 34,96 |
| Garage | Oui |
| Carport | Non |
Maison Grenadines
✔️ 4 chambres
✔️ 1 salle de bain + 1 salle d'eau
✔️ Garage
✔️ Personnalisation
Un style affirmé, une conception soignée : Grenadines incarne la maison familiale moderne par excellence.
| Surface | 104,18 |
|---|---|
| Chambres | 4 chambres |
| Salle de bain | 1 salle de bain + 1 salle d'eau |
| Surface séjour | 34,96 |
| Garage | Oui |
| Carport | Non |
Maison Grenadines
✔️ 4 chambres
✔️ 1 salle de bain + 1 salle d'eau
✔️ Garage
✔️ Personnalisation
Un style affirmé, une conception soignée : Grenadines incarne la maison familiale moderne par excellence.
| Surface | 104,18 |
|---|---|
| Chambres | 4 chambres |
| Salle de bain | 1 salle de bain + 1 salle d'eau |
| Surface séjour | 34,96 |
| Garage | Oui |
| Carport | Non |






